Dawson Downie Lamont - Manufacturers of Steam and Power Driven Reciprocating Pumps
DDL - Reciprocating Pumps, Steam Driven Pumps, Marine Pumps, Piston Pumps

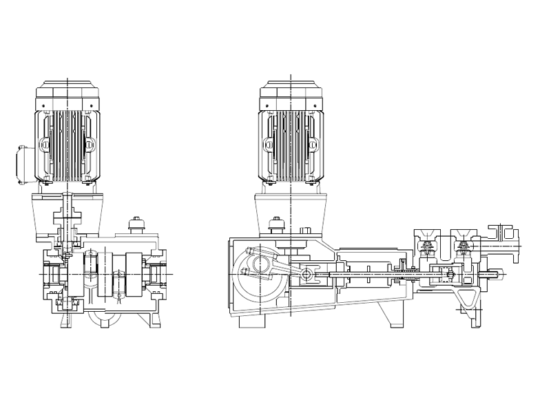
Power Driven Piston Pumps

Dawson Downie Horizontal Duplex Crankcase Piston Pumps are designed, manufactured and tested in accordance with API 674 and the Hydraulic Institute Standards for oilfield and refinery service.

Design Features

  • The crankcase is of the totally enclosed dustproof type of robust construction and incorporating an improved design of splash-gravity lubrication providing for continuous running with minimum attention.
  • Crankshafts are manufactured from high-grade carbon steel and run on heavy duty tapered roller bearings. Connecting Rods are in carbon steel and fitted with adjustable lead bronze bearings.
  • A specially designed splash-gravity lubricating system ensures an adequate supply of lubricating oil to all moving parts so that the pumps can run for long periods in remote areas with minimum attention.
  • Liquid ends are available in various material options to ensure compatibility with the pumping medium. The liquid end design incorporates a generous corrosion allowance to ensure an extended life cycle.
  • Valve service is of the wing-guided type operating in a taper valve seat with disc type valves for low NPSH requirements.
  • Pump flow can easily be altered by employing interchangeable pistons and liners of various diameters from within the range.
  • Both design and dependability have been proven by thousands of working hours in arduous service. The pumps are driven through V-rope or other reduction gearing, by IC Engine or electric motor. The combined unit is mounted on a fabricated steel skid underbase for easy transport over rough ground.

HORIZONTAL DUPLEX MOTOR DRIVEN PISTON PUMPS
Flow Rates up to 110 m3/hr with pressures up to 140 bar

More Pumps: Steam Driven Pumps | Triplex Power Pumps | Marine Pumps

the complete package

Part of the Proclad Group of Companies :  Proclad International :  Dawson Downie Lamont :  Pattern Shop :  ITS Tooling: Proclad International Forging


Click an image below to view in large size

Piston Pump #1 Piston Pump #2 Piston Pump #3 Piston Pump #4 Piston Pump typical section drawing